1、可拆卸吊顶(如铝扣板):无需预埋烟管,工程师会直接为您固定好烟管并安装好机器。
2、不可拆卸吊顶(如石膏板):在吊顶封闭前,工程师可以上门先把烟管插到公共烟道内并固定好。
您可以在“西门子家电官方服务”小程序的服务大厅中预约上门。
防烟宝是用来连接烟管和墙上出风口的装置,防止油烟倒灌。
您可以自行准备,也可以在工程师处购买。
1、开孔需求:安装需要开公共烟道孔(或墙孔)、吊顶孔和橱柜孔;
2、开孔尺寸:开孔直径通常是180mm和200mm,具体孔径大小请参考产品说明书;
3、开孔位置:公共烟道孔(或墙孔)的位置要高于机器出风口的位置,吊顶、橱柜的开孔位置建议在机器中心线偏左5厘米。
1、吊顶空间要便于烟管安装,并不能有阻碍物影响烟管排布,建议吊顶与房顶之间的高度不小于300mm;
2、排烟管控制在长度3米以内、弯折一个,避免使用过长的烟管,排烟管不能按照以下的方式安装,可能会影响排烟效果。

请根据型号查询说明书,以下高度是从安全和吸烟效果方面给出的建议高度。
侧吸式烟机
型号特征:LS开头
安装距离要求:350mm~400mm
距离描述:指烟机最下端到灶具台面高度的距离(不区分灶具类型)
图示:

欧式烟机
型号特征:LC开头
安装距离要求:650mm~730mm
距离描述:指烟机最下端到灶具台面高度的距离(不区分灶具类型)
图示:

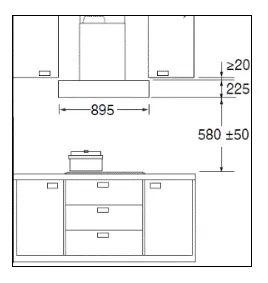
特殊型号
型号特征:LC88FN950W、LC87FA951W、LC88EN951W
安装距离要求:580±50mm
距离描述:指烟机最下端到灶具台面高度的距离(不区分灶具类型)
图示:
